burkhardgrote.de  

lebenslauf

bilder

neuigkeiten

links

kontakt

home

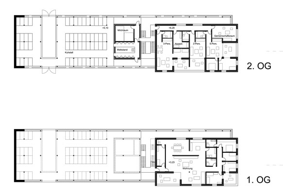
Haus-Tier
 
Weitere Informationen zu den Projekten
durch Klicken auf die Verkleinerungen