burkhardgrote.de  

lebenslauf

bilder

neuigkeiten

links

kontakt

home

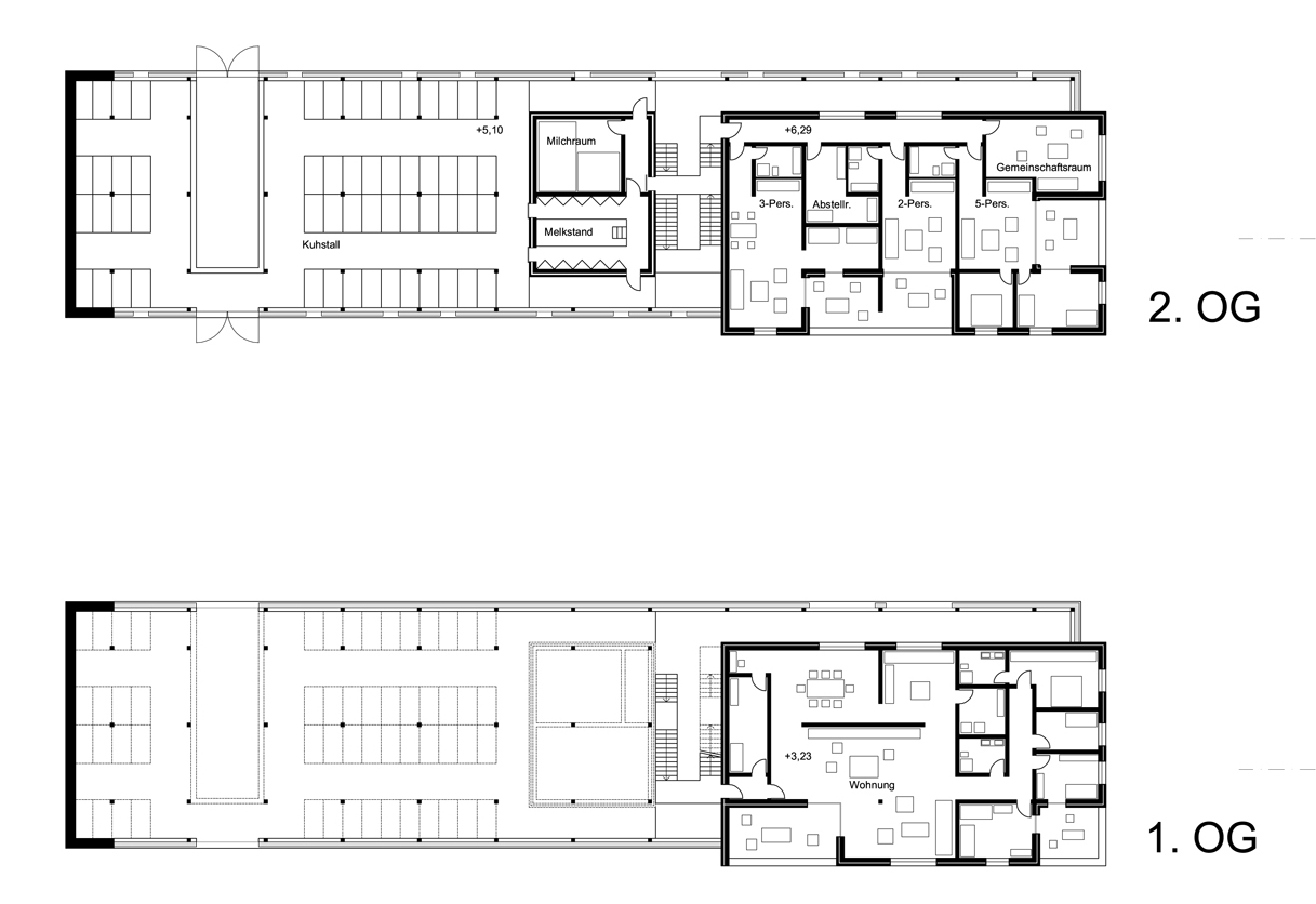
Haus-Tier
 
In dem mit Gabionen verkleideten langgestreckten Baukörper
steckt der geschlossene Betonkubus mit den Wohnungen